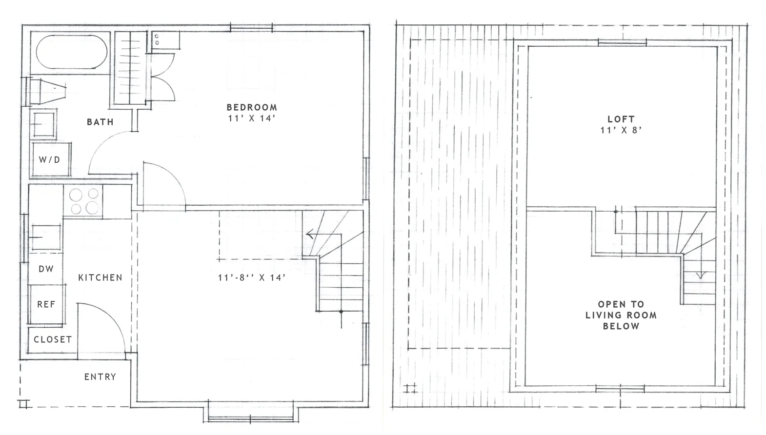
Perfect for one person or a couple, the Tiny House 1 Bedroom + Loft is our newest design.
The unit is 650 square feet, which is larger than the Studio 1 Bedroom but smaller than the Charming 1 Bedroom + Loft unit. Like all of our apartments, the Tiny House has a standing clothes washer and dryer in the bathroom, a shower tub, and a full kitchen, including a compact refrigerator, dishwasher, stove/oven, kitchen, and microwave. The electrical appliances are all compact and in proportion with the size of the apartment. If you're interested in larger appliances, we would recommend our Charming 1 Bedroom + Loft or Classic 2 Bedroom + Loft apartments. Either a ladder or a staircase leads to the storage loft above. The apartment rents start at $1,845/month (with ladder) and $1,895/month (with staircase).
Photo: Fausel Imagery